日期:2021-06-13 12:46:48作者:装修情报图片:未知人气:+

房屋信息
位置 上海嘉定南翔
状态 新房毛坯
面积 建筑面积96,套内74
原始格局 三房两厅一厨一卫
居住人数 目前两人,但是得考虑成长性空间
装修需求
一直在变。#设计师内心早已崩溃#
从三房到两房,从两房到三房;从一卫到两卫,从两卫到一卫···从5万半包10万全包看到10万半包40万全包···嗯,就是不知道要什么,装修是一个不断学习、自我认知及加强家庭沟通的过程。
装修公司千千万,哪些闯入了我们的视野
2018年5月开始陆续看装修,前后看了不下20家,从工头聊到独立设计师,从不知名装修公司看到业内上市公司。他们来源于各种骚扰广告,朋友介绍,互联网广告等。遗憾的是,直到跨年,依然没有建立合作关系。为什么呢?可能跟相亲一样,互相看不上吧···
--信息泄露带来的各种广告--
在各种电话广告和短信广告的轰炸下,2018年5月开始看第一家装修公司,接触下来,多数都是以设计师免费出图为卖点,以小区专属样板房为套路。实际上,都是骗人的,什么样板房,不存在的。
但是这种,一般情况下,他们会有整个小区的户型图,初步设计图。对我这种初次装修的菜鸡来说,看看无妨。可是,要建立合作关系,基本没可能,天生不太喜欢这种生意模式,所以对于这类装修公司,我借机学习一下下,撤退。

--熟人/朋友介绍--
这种来源的装修公司、设计师、装修队,相对来说默认信任度附加值增加。有人背书,相对来说警惕性会降低,但是要注意分辨,是否适合自己,毕竟每家/每个人的关注点和需求有差异。
比如朋友给我推荐了装修队,工长还会设计,去现场看的时候,擅长小户型的他当时就提了好几个不错的建议——又加分了。但是当我去看了他们刚装完的一套之后,觉得可能并不是很适合我。
虽然需求一直在变,不变的是,我清楚的知道自己需要有活力和生命力的家。

--各互联网平台--
感谢互联网让信息更透明,信息不对称逐渐减少。像其他行业一样,家装除了综合平台之外,也有垂直领域的平台,在此就不具体列举了,反正我还没开工,手机内存早就不停报警了。这类装修公司,绝大部分都是专门做网单的,薄利多销,价格相对低是真的,靠量取胜。咳,我又有个坏毛病,不喜欢吃大锅饭,这一类也直接路过拜拜。
还有一类是新型的装修公司,借助精良的新媒体营销,做标准化装修。看图片真的很有吸引力,颜值冲在前面,粉丝们嗷嗷叫着自己城市怎么还不能装。去看了之后,发现弊端很多,比如价格并没有宣传的那么低,乱七八糟加总价嗷嗷飞起,更不能加一丁点个性化了,加啥都加钱。对不起,所谓颜值,我消费不起。
除此之外,还有电视广告、公共交通广告等,这种轰炸型的广告,我个人向来是拒绝的,直接无视这些公司或平台。
直到2019年1月份,加入装修情报社群,了解到缤视设计,经过观察和沟通,决定让他们上门量房做方案,并最终签下设计合同,也算是路漫漫的装修迈出了第一步。确定装修合作方, 我们是如何考量的?
作品。装修设计,设计水准当然是第一位的,活好不好,只能通过过去的业绩去体现,各行各业都是如此。初看缤视的作品,着实惊人,可能是我没见过世面,一下子就被吸引了。或夸张,或张扬,或鲜艳,或内敛,亦或简单的舒适···透过作品,我能感受到某种似乎与我相切合的性格属性,不拘一格。
人。装修前后差不多半年,这半年时间,与相关工作人员,密集接触,相处,交流,三观不合怎么能行呢···我曾经说黄总是我看过的设计师里素养比较全面的,强将手下无弱兵,最终我选了缤视里价格适合我的小姐姐做方案。
设计师小姐姐接到合作需求,
考虑了哪些?
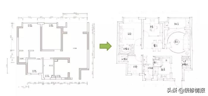
量房。原结构相对比较合理,只是主卧衣帽间比较畸形,并且北向次卧面积过小。但是让人欣慰的是,房子的三个主要空间都有大面积的南向窗户,这让我觉得这个空间仍然有很多可能。总体感觉这是一个很普通的中国式户型。
业主需求。女业主有一个特别的要求,就是在保留三房两厅的基础上增加一个卫生间,希望能够缓解将来多人居住而产生的使用冲突。三间房间的用途分别是一间主卧,一间为将来的宝宝准备的次卧,还有一间则是可作为书房也可做为客房的多功能房间。保留中式厨房设计,可以更好的适应中式烹饪带来的油烟问题。
设计思路。回拿到测量出来的平面图,我并不仅仅想在原结构上进行一点点修改。我的第一个想法是该如何打破原有的建筑结构,让整个空间变得更加灵动、有趣。并且同时满足增加一个客卫的需求,解决入户、主卧衣帽间、北面次卧的收纳问题。
1月19日量房之后,经过现场沟通和设计前的需求调查表,1月30日,前往缤视看初版设计方案。共做了3套方案,原本满屋子承重墙的前提下,还做出来3套方案,也是着实惊到我了。因为看了那么多家公司,一路走来,早已视觉疲劳,满屋子的承重墙,根本做不出来什么有亮点的设计。初版手稿设计方案及沟通
----方案一(点击查看大图)

设计师说:对空间进行重新的排列组合,以优化结构及使用。
利用原房屋的承重结构中位于厨房南面的承重墙,作为冰箱储物区域也作为进门玄关开放空间形成一个回廊结构,让每一段走廊都变得明亮通透。厨房和卫生间区域,增加了客卫,在保证使用的基础上在北面一字排开。书房多功能区域,作为休闲等次要空间,可以通过在与次卧相邻的墙面做透光设计,借用次卧的阳光,解决书房的采光问题。业户反馈:整个空间通透性得到了极大改善,但是有几处难以接受
厨房位置太小,操作起来应该特别不便利餐桌位置狭窄,并且作为公共通道,动线感觉不太好,动静不分离书房/客房的位置相对尴尬,无窗,借光私密性欠佳----方案二(点击查看大图)

设计师说:保留原结构,微调
在原餐厅处增加了入户衣帽间,解决了入户储物不足的问题。餐厅则利用压缩原次卧的空间,将原次卧用作书房,因为书房为多功能空间,对私密性要求没有卧室那么高,可以做成半开放式结构,利用玻璃做隔断解决餐厅的采光问题。利用部分厨房空间增加一个客卫。重新整理原衣帽间位置,隔出两个衣帽间,其中一个供北向次卧使用。业主反馈:3个衣帽间,简直豪宅配置。但是
厨房到餐厅绕弯先生无法接受原本次卧进行了拆分客卫借厨房之后,导致厨房异常尴尬----方案三(点击查看大图)

设计师说:对空间进行重新的排列组合,以优化结构及使用。
将客厅置于原主卧处,进门时通过一条倾斜的过道来到客餐厅的开放空间,斜墙不仅让空间增加层次,也变得更具有设计感。将厨房和卫生间对调了位置,厨房离客餐厅更近,方便使用。卫生间采用干湿分离的设计,利用承重结构和入户过道用作卫生间干区。拥有独立的入户衣帽间,同时拥有一个更大的主卧衣帽间。原主卧处改造成客厅及书房的空间,客厅与书房之间使用可活动隔断,在书房不使用的情况下,可并进客厅扩展客厅空间。业主反馈:斜墙设计,大胆,惊得下巴都掉了。
女业主对这套总体是比较中意的,特别是近5年左右的时间,自住,在宝宝出生到不需要独立房间的情况下,目前的布局,舒适度一级棒。保守和传统的先生,无法接受斜墙5年后不换房子的话,书房/客房私密性欠佳餐桌位置依然尴尬
饱含纠结的方案优化
初次方案沟通结束后,我对室内设计师这个职业有了全新的认识,原来还可以这样大胆。但是由于我们夫妻双方对风格的理解和接受度存在较大的分歧,所以沟通下来,麻烦设计师继续优化3个方案中的两个,也是方案二和方案三;优化方案见下图中的2-1和2-2。

但是对以上两个方案我们夫妻双方还是争议很大,先生始终无法接受好好的次卧被毁了,也无法接受主卧和客厅对调。实在没办法改变他的想法,我只能改变我自己了,最终达成一致在不大改原户型结构的情况下,进行方案优化,于是有了3-1和3-2两个方案。这两个方案依然满足了两个马桶的设计。

大结构解决了,接下来到白热化的问题,两个马桶的争议。争论过、吵过之后,再冷静下来思考,我似乎突然明白,开开心心装修属于我们的房子,以后就恩恩爱爱抢马桶吧···经过与设计师的细节沟通,最终定稿了平面图。

装修设计部分总结和再出发
--设计师说--
最初的手稿,三个方案都在保证三房两厅的基础上增加了一个客卫,并最大可能的解决原结构的收纳问题。但是随着和业主夫妻二人的深入沟通,发现业主对增加卫生间及布局调整有着强烈的内部分歧。经过夫妻二人漫长的思想斗争之后,我也只能忍痛舍弃有灵性的方案,在原始结构上做一些微调。
对于增加一个卫生间的想法,对于我个人而言,是非常实用的功能。所以在沟通的过程中,仍然尽我所能的帮助业主保留客卫。即使在使用原建筑结构的基础上,仍然尝试对调厨房和卫生间区域、压缩厨房空间来增加客卫,甚至考虑将客卫放在书房衣帽间区域,使用卫生间排污泵来达到效果。仅为了客卫区域,前后调整3-4次。
最终,业主仍然放弃了增加卫生间的想法,仅在次卧区域增加两组背靠背储物柜,并在餐厅处增加一组餐边柜,并把冰箱移至餐边柜来扩展厨房空间。次卧区域,为了留给次卧更大的空间,利用储物柜的使用功能不同,在不影响使用的基础上最大可能的压缩两组储物柜的深度。餐边柜也采用同样的方法以达到利用最大化。

--业主说--
装修环节中的首要一环是设计,那么在设计过程中,业主需要与设计师有效配合,才能让最终的设计能够在满足业主需求的情况融入更多的设计元素。当然这也是自我认识、夫妻双方不断磨合的过程。
如何与设计师沟通首先要了解设计师的工作模式和习惯,是全部做好再沟通还是边做边沟通。比如我们小姐姐就是习惯全部做好再沟通,那在我不是特别理解的时候,我这个急性子就觉得她特别不积极主动、不跟业主沟通交流,埋头做···因此也产生了一些不误解,不过没有什么是有效沟通解决不了的误解。遇到又穷,脾气又差,要求又多的业主,设计师也是崩溃了100遍了!
设计师与业主是互相长成的关系,而不是一方纯粹的依赖。但在双方沟通的过程中,业主属于相对的被动方,我个人认为设计师应该积极填补业主的信息缺失。那反过来,业主有疑问及时提出,千万不可积攒,特别是当自己的一些需求没有得到满足时,一定及时沟通。设计师则需要给到专业又合理的解释建议,而不是一味迎合业主。但是,业主也不要自作聪明,乱指挥设计师,作为给钱粑粑,业主坚持任何变态需求,设计师都会满足你的。

夫妻双方的磨合及适当妥协
家庭成员之间不争论不吵架的装修路,是残缺的。我们也是因为装修吵过架了,算是完整了。好在最后的最后,达成了相对统一的战线。我从长远考虑一直想要两个马桶,先生一直比较抵触,因为主要是我一直在看装修,所以都是按着2个的做方案。
但是当他现场看方案时,怎么都接受不了因为马桶而造成的其他空间的挤兑,也接受不了好好的次卧怎么就毁了,也接受不了进门不敞亮要走很远才能到客厅···依我强势的性格,可以执意要求按着我意愿来,但是本着尊重和共同参与的原则,每一步都征求他的同意,威逼利诱、撒娇卖萌,能使的套路都用一遍。
依然无效。那么好的,听你的,我妥协,我不改户型结构了,回到原始户型;我不要两个马桶了,回到原始户型。但是后续的风格能不能主要听我的,「嘿嘿,好的」。
--再出发--
平面图经过1个多月的沟通磨合,终于定下来平面图,过程漫长又难忘。接下来开始效果图、施工,希望经过前期的磨合,设计师能够跟我们互相长成、愉快的玩耍,共度一段难忘又幸福的装修旅程。

编辑留言
我是编辑马拉拉多,今天编辑奶瓶的这篇稿子,真是很愉快啊,能把自己的装修过程中的纠结,威逼利诱,撒娇卖萌,还有顾全大局的舍弃,这些装修中常见的精分状态写得如此酣畅淋漓,连我看得都觉得很带劲儿。如果想再看看其他的设计案例,私信小编哦~
本站所发布的文字与图片素材为非商业目的改编或整理,版权归原作者所有,如侵权或涉及违法,请联系我们删除,如需转载请保留原文地址:http://www.gzkyz.com.cn/article/46751.html

装修情报
倾诉你的情感,分享属于你们的故事 Copyright 2005-2020 www.gzkyz.com.cn 【可可情感网】 版权所有 |
湘ICP备20010517号
声明: 部分信息与图片素材来源于互联网,如内容侵权与违规,请与本站联系,将在三个工作日内处理,互联网不良信息举报邮箱:*****@qq.com