日期:2021-10-10 05:26:32作者:趣历史网图片:未知人气:+
清朝的宫斗剧一直引起热议,深受大家的喜爱。在清朝的后宫中,嫔妃之间一直存在着等级的差异,并且有着非常严格的控制。清朝对于妃嫔的选择、册封、晋封以及日常生活都有着严格的要求,清朝后妃制度她们要遵循的相关制度。对于清朝统治阶级来说,后妃制度也是一种统治手段,可以通过封妃晋升等手段来稳定朝政,“后宫不宁,则天下不宁”的说法也由此而来。
清朝后妃制度随着时间而逐步完善,其中有较为漫长的演变过程。

《清史稿·后妃传》中关于后妃的等级和选妃有较为详细的记载。后金努尔哈赤统治时期,还没有建立后妃制度,当时的妻妾被称为福晋。清太宗皇太极时期,后妃制度才逐渐完善。皇太极统治初期,建立了五宫,定下了“一后四妃”的制度,除了中宫清宁宫外,还设立了东宫关雎宫、西宫麟趾宫、次东宫衍庆宫和次西宫永福宫。入关后,顺治皇帝决定采取礼宫建立,后妃的名称变的多了起来。但这个制度没有真正被执行,福晋和格格这两个称谓依旧存在。

直到康熙时期,后妃制度真正完善,福晋和格格这些后妃称谓彻底消失。据《清史稿·后妃传》记载,从康熙开始,清朝后宫的嫔妃们共分为八个等级,由下往上依次是答应、常在、贵人、嫔、妃、贵妃、皇贵妃和皇后。除了等级之外,在人数上也进行了限制。在同一时间,皇后和皇贵妃只可设立一人,贵妃二人,妃四人,嫔六人,至于贵人、常在和答应这三个等级则不限制人数。皇后的地位最高,皇贵妃到嫔是妾室,而贵人、常在和答应仅为通房,地位低下,没有正式的封号。

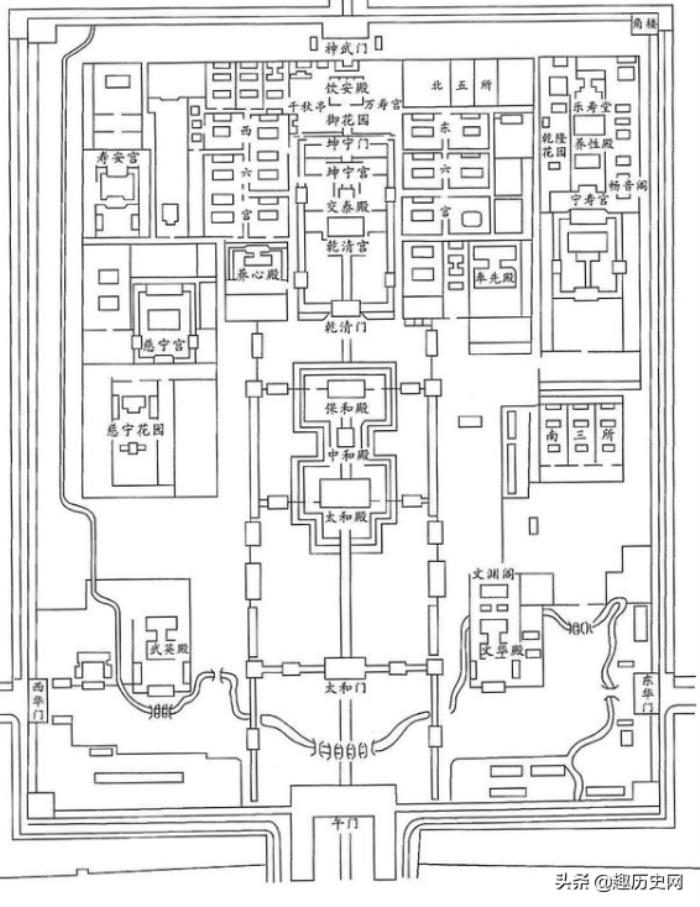
后妃的地位高低与紫禁城内的格局也是相对应的。后妃中皇后的地位最高,居于中宫坤宁宫,其他嫔妃则居住在“东西十二宫”,这十二宫是簇拥在乾清宫和坤宁宫两边的。东六宫有:景仁宫、承乾宫、锺粹宫、延禧宫、永和宫、景阳宫;西六宫有:永寿宫、翊坤宫、储秀宫、启祥宫、长春宫、咸福宫。每个宫殿都有宫女供嫔妃们役使,她们的吃住花销乃至衣服都有严格的等级划分。
嘉靖帝去世后,道光帝对于父亲的遗孀都晋尊升位,妃位晋为皇考贵妃、常在晋为皇考嫔位等。晋尊升位这个行为也逐渐成为登基后的惯例,一直延续到清朝末期。
本站所发布的文字与图片素材为非商业目的改编或整理,版权归原作者所有,如侵权或涉及违法,请联系我们删除,如需转载请保留原文地址:http://www.gzkyz.com.cn/article/122358.html

趣历史网
倾诉你的情感,分享属于你们的故事 Copyright 2005-2020 www.gzkyz.com.cn 【可可情感网】 版权所有 |
湘ICP备20010517号
声明: 部分信息与图片素材来源于互联网,如内容侵权与违规,请与本站联系,将在三个工作日内处理,互联网不良信息举报邮箱:*****@qq.com