日期:2021-11-13 07:07:22作者:租售情报图片:未知人气:+
滨江临河逐水而居是每个人的梦想,在繁华的大上海,黄浦江是她的魅力根源,是她的精神支柱,没有哪条路、哪个板块能像滨江地带一样,聚集了上海最顶级的豪宅。
但是,作为普通人的我们,应该学会妥协,并认清一个事实:顶豪们一直垄断着唯一世界级的黄浦江资源,江景大宅动辄10万、20万一平。
与上海如出一辙,湄南河沿岸是曼谷成熟度极高的高端区域,深受外国高端人士——尤其是欧美人的喜爱:
这里不仅有大皇宫、卧佛寺、郑王庙等著名旅游景点,还有河滨夜市和全球最高的露天餐厅Sirocco等休闲场所;
不仅有The%20River%20by%20Raimon%20Land等泰国著名的豪宅,更是齐聚喜来登酒店、东方文华酒店、希尔顿酒店、香格里拉大酒店等五星级酒店,世界级购物中心ICONSIAM也已开业,将湄南河沿岸的高端居住属性,展露无遗。
曼谷10大豪宅有2个就在湄南河畔
Magnolia%20Waterfront%20Residence
售价450,000,000泰铢(约合87,040,618元人民币)
Four%20Seasons%20Private%20Residence%20
售价378,000,000泰铢(约合73,114,119元人民币)
而Chapter%20Riverside湄南星河湾的“超神”之处便在于
位于曼谷“母亲河”湄南河畔,一河之隔便是泰国金融区Silom/Sathorn%20是隆/沙吞区(曼谷版“陆家嘴”);
毗邻东南亚最大商场ICONSIAM(比正大广场还好豪华的商场);
并且户户一线湄南河景!泰国著名上市开发商Pruksa力作,总价80万起!
可谓是和顶豪在湄南河畔做邻居最低的门槛了
项目基本信息
项目名称:Chapter Charoennakhon - Riverside
中文名称:湄南星河湾
开 发 商:PRUKSA
参 考 价:80万人民币起(以开发商定价为准)
项目类型:A栋45层;B栋43层
交房日期:2022年1月
项目单元:669个
停 车 位:419个
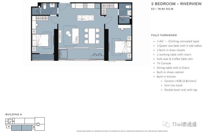
项目户型:
A栋1室(河景)34㎡;A栋1室+(河景)38.95㎡
A栋2室(河景)68.6-78.8㎡;A栋2室(河畔)75.6㎡
A栋3室(河畔)151.6㎡
B栋开间(河景)25.1㎡;B栋1室(河景)32.1㎡
B栋2室(河畔)49.1㎡
配套设施:大堂、河滨大道、健身房、共享厨房、河畔休息室、池畔休息室、儿童俱乐部&沙池、空中休息室、攀岩墙、篮球场
曼谷的发展有点戏剧性,如果以河为界,河西吞武里作为长兄,占了先机却莫名丢了机会;河东曼谷后来居上,成了中南半岛最耀眼的明珠。如今湄南河的东西两岸,宛若同一世界下的两个时空。一边车水马龙高楼林立;一边水路阡陌棚屋成片。
一水之隔,一朝一夕,用各自的方式为曼谷代言。

吞武里的“吞”为财富之意,“武里”为城堡之意,合起来意为“黄金之都”。
由于吞武里曾经是泰国的首都,是泰国历史上第三个王朝,这里完好地保存了泰国的许多传统建筑与生活方式。
吞武里是曼谷最成熟、离CBD最近的生活区,如果把沙吞比作北京的国贸,那么吞武里就是离国贸最近的四惠,如果把湄南河比作上海的黄浦江,那么吞武里就是上海的浦东。生活这这里,交通出行便利,生活配套成熟。

由于吞武里与是隆/沙吞这个泰国传统的金融CBD仅一江之隔,不论是陆路还是水路交通都非常便捷,所以市中心的白领们都选择聚居在这里。尽管这里是郑信王朝的旧王都,因缺乏政府大规模开发而保留了许多传统又古老的建筑,但依然不乏时尚又现代的商业设施。

在吞武里与是隆/沙吞中间的湄南河沿岸,汇聚了希尔顿、喜来登、东方华文、香格里拉等世界级奢华酒店,是曼谷少有的五星级邻里环境。

项目所处的位置是湄南河的正中心位置,直面泰国超级豪宅——四季私人官邸及泰国第一贵族学校Shrewsbury,右眺望摩天轮夜市,左俯瞰泰国新兴奢华商场Iconsiam,还可欣赏到泰国第一标志性地标建筑像素大厦,位置极佳。

△摩天轮夜市

△四季私人官邸

△像素大厦
3分钟到BTS Krung-Thonburi站3分钟(乘船)到Sathorn码头5分钟到ICONSIAM购物中心10分钟到Sathorn -Silom曼谷中央商务区
项目背靠曼谷最核心的金融CBD沙吞区,待项目建成后,可乘坐项目专属接驳船,3分钟即可抵达BTS 站点,乘坐3站即可到达Sathorn站。
沙吞始建于上世纪80年年代末期,是泰国的第一个中央商务区,办公楼林林⽴立,总办公面积已达到170万平,主要以大型跨国企业、银行总部、金融行业总部为主,目前CBD区所创造的GDP几乎占了曼谷GDP总量的半壁江山。

繁华之上,沙吞即将再添两大巨无霸工程,为CBD注入新的活力:
其一,是由TCC集团与新加坡星狮地产联合打造、占地16.6万平、总投资超过35亿美金(约245亿人民币)的One Bangkok 项目,该项目将包含5栋A级写字楼、5间豪华酒店、3栋顶级豪宅以及一系列的大型商场组成,一期预计将于2021年开业,全部工程预计将于2025年完工;

其二,是总占地8.3万平、总投资260亿泰铢的Langsuan Village项目,项目将包含写字楼、酒店以及私人住宅,目前该项目已在建设中。

规模浩大且品质极高的写字楼,吸引了大批受过优质高等教育的白领、金领以及跨国企业的高管入驻,这里既是主要的欧美人聚集地,也是泰国人口综合素质最高的区域,更是全泰国收入水平最高的区域,这里是真正的高端圈层所在地。
这些对品质生活追求极高的人群正是本案项目居住需求的所在,也是房子升值、保值的重要因素之一。
另外,从Sapahan Taksin站点乘坐BTS仅需要6站、12分钟时间就可以到达暹罗广场,从这里开始,BTS沿线往东南方向拥有6大世界级的购物中心Em贵妇百货商圈、Terminal 21等,著名的四面佛也位于此。所以,该项目无论作为投资寻求长租客、亦或是作为度假公寓使用均是不二之选。


△上图红框内的线路即为黄金线
另外,泰国政府为了全力推进湄南河边的经济发展,目前正在建设黄金线,首发站(G1站)与BTS沙吞线的Krung Thon Buri相连;G2站为泰国新兴人气奢华商场ICONSIAM站。

除了立体化的轨道交通体系,身处湄南河畔,水路交通也不容忽视。从项目私家码头乘坐私属的接驳船,只需3分钟即可到达沙吞码头,从沙吞码头换乘,即可沿河游览曼谷的著名景点,一站到摩天轮夜市、一站到ICONSIAM、两站到廊1919(建于 19 世纪的中式豪宅,后经修复,现为多功能综合性建筑,设有餐厅、商店和神庙。)、三站到唐人街、六站到大皇宫、九站到考山路。


项目距离游客必打卡地标级的购物中心——ICON SIAM暹罗天地仅需5分钟车程。
这个占地52万平方米的购物中心,包括了专供奢侈品牌和服务的“ICONLUXE区”、以及以零售娱乐为主的“ICONSIAM区”、1家酒店与1座公寓大厦。奢华又创新的购物、生活、娱乐体验,是曼谷重量级新兴旅游目的地。


△奢华大气的ICONLUXE


△独具民俗特色的ICONSIAM
此区域预计每年2200万游客访问量,为此区域未来地价、房价都打下坚实基础。
除此之外,还有距离项目1.7km的摩天轮夜市,以及可随时购物的Sena Fest,日常休闲娱乐生活十分便利。

摩天轮夜市
Sena Fest

距离项目仅一河之隔就是曼谷著名国际学校——Shrewsbury International School(什鲁斯伯里中学)。Shrewsbury集团于1552年由英国皇室特许创建,是英国历史最悠久的私立学校之一。而曼谷Shrewsbury是其第一家海外分校,于2003年开办至今。

Shrewsbury采用传统的英式教育体系,为3-18周岁的孩子提供良好的教育环境。学校在高中阶段设有IGCSE和A-Level课程。

当然,除了一河之隔的什鲁斯伯里中学,还有很多高端国际学校在项目附近,比如Assumption College Bangkok, Bangkok Christian College 。
Assumption College Bangkok


Bangkok Christian College
项目周边很多顶级医院,Samitivej Hospital ,Bangkok St Louis Hospital, Taksin Hospital,其中三美泰医院着重的介绍一下,三美泰医院成立于1979年,是泰国同行业中处于领先地位的私立医院集团,被认为是东南亚最先进的私立医院之一。



Taksin Hospital
Bangkok St Louis Hospital



























(楼盘编号:TM154)

本站所发布的文字与图片素材为非商业目的改编或整理,版权归原作者所有,如侵权或涉及违法,请联系我们删除,如需转载请保留原文地址:http://www.gzkyz.com.cn/article/153859.html

租售情报
倾诉你的情感,分享属于你们的故事 Copyright 2005-2020 www.gzkyz.com.cn 【可可情感网】 版权所有 |
湘ICP备20010517号-4
声明: 湖南华崛信息科技有限公司,部分信息与图片素材来源于互联网,如内容侵权与违规,请与本站联系,将在三个工作日内处理,互联网不良信息举报邮箱:*****@qq.com